
萬級送風天花又稱為潔凈送風天花,凈化送風天花,層流送風天花,無塵送風天花,手術室送風天花。
萬級送風天花箱體板金制作,表面烤漆。萬級送風天花隨著現代醫學科學技術的發展,外科技術對手術室的潔凈條件的要求也越來越高。百級層流手術室是目前為理想的。
什么是萬級層流送風天花?
萬級層流送風天花是一種基于空氣潔凈技術的微生物污染控制設備,它依托手術室潔凈送風天花裝置,通過合理的氣流分布,確保室內的潔凈度達到送風面100級的標準。它可廣泛應用于醫院潔凈手術室、潔凈病房、潔凈動物房等項目,為醫療環境提供極致凈化解決方案。

萬級層流送風天花的工作原理
萬級層流送風天花的工作原理是根據空氣潔凈技術,通過高壓噴射的空氣將微生物污染程度不同的空氣進行控制,從而達到控制空間環境中空氣潔凈度的目的。同時,它還能提供適宜的溫、濕度,創造一個潔凈舒適的手術空間環境。
萬級層流送風天花板的優勢
高效凈化:萬級層流送風天花能夠有效控制空氣中的微生物污染,確保手術室內的潔凈度達到最高標準,為患者提供安全的手術環境。
合理氣流分布:萬級層流送風天花能夠合理分布氣流,使潔凈空氣覆蓋整個手術室,確保手術過程中潔凈度的穩定。
智能控制:萬級層流送風天花采用智能控制系統,可實時監測室內潔凈度、溫、濕度等參數,并根據需求進行調節,確保室內環境始終處于最佳狀態。
節能環保:萬級層流送風天花采用節能設計,降低能耗,同時減少對環境的影響。
安裝方便:萬級層流送風天花板的設計便于安裝和維護,節省了醫院的人力物力資源。
但如何有效管理,使層流手術室的空氣菌落數符合衛生部頒發的空氣環境衛生學標準,又符合潔凈手術室等級標準,并使之減少到最低限度,國內檢索文獻資料較少,是目前潔凈手術室管理中值得探討的一個新的課題。
層流送風天花是采用空氣潔凈技術對微生物污染采取程度不同的控制,達到控制空間環境中空氣潔凈度適于各類手術之要求;并提供適宜的溫、濕度,創造一個潔凈舒適的手術空間環境。

那么、層流送風天花有什么特別要求呢?
層流天花是潔凈手術室、層流病房的凈化送風末端,它兼有高效過濾,均流及氣流補償作用。
層流天花結構的合理性直接影響到手術室的送風效果,凈化級別、垂直送風模式;
像”梓凈”牌層流送風天花結構合理,分為I、II、III級手術室用,箱體冷板噴塑,下框全不銹鋼,美觀耐用。潔凈送風天花裝置是根據國內外領先的阻漏層技術,使用本設備可合理分布潔凈室內的氣流,有效保證室內的潔凈度(送風面100級)。
層流凈化手術室不僅要求高度潔凈的空氣(進入手術室的空氣須經高效過濾器凈化),而且要求能控制氣流的流通方向(即采用層流超凈裝置),使氣流從潔凈度高的手術區域流向潔凈度低的區域,并帶走和排出氣流中的塵埃顆粒(塵粒)和細菌;層流是一股細小、薄層的氣流,以均勻的流速向同一方向輸送;凈化氣流的方向分為垂直層流式和水平層流式兩種。
“梓凈”牌潔凈層流送風天花高效過濾器有組合式高效過濾器、無隔板高效過濾器、有隔板高效過濾器三種,可根據需要選配。

手術室層流送風天花的高效過濾器如何維護呢?
手術室層流送風天花的高效過濾器維護要點:
1、檢驗方法:觀察或白綢布擦拭檢查。
2、對于高效過濾器,安裝方向必須正確:過濾器在豎向與框架之間的連接,嚴禁滲漏、變形、破損和漏膠等,安裝后必須保證內壁清潔,無浮塵、油污、銹蝕及雜物等。
3、高效過濾器在安裝前,不允許用手撕毀或打開包裝袋或包裝膜;應嚴格按照高效過濾器包裝箱上標注的方向標準存放空氣過濾器;在高效空氣過濾器的搬運過程中,應輕拿、輕放,避免劇烈的振動和碰撞。必須對潔凈室進行全面清掃、擦凈,凈化空調系統內部如有積塵,應再次清掃、擦凈,達到清潔要求。如在技術夾層或吊頂內安裝高效過濾器,則技術層或吊頂內也應進行全面清掃、擦凈。必須在安裝現場拆開包裝進行外觀檢查,內容包括:濾紙、密封膠和框架有無損壞;邊長、對角線和厚度尺寸是否符合要求;框架有無毛刺和銹斑(金屬框);有無產品合格證,技術性能是否符合設計要求。
4、高效過濾器的運輸和存放應按照生產廠標志的方向擱置。在運輸過程中,應輕拿輕放,防止劇烈振動和碰撞,不可以強制裝卸。
5、安裝高效過濾器時,外框上箭頭應和氣流方向一致;當其垂直安裝時,濾紙折痕方向應垂直于地面。安裝粗效平板式或折疊式過濾器,應使鍍鋅網面在出風背面方向。安裝袋式過濾器,則應使濾袋長度方向垂直于地面,不可使濾袋方向平行于地面安裝。
6、在設備運行時,一般不要更換過濾器;如因過濾器已到更換期限而無法停機更換,則只允許在不停風機情況更換初效過濾器、中效過濾器;亞高效過濾器和高效過濾器必須停止送風后方可更換。
7、高效過濾器與連接框架之間的密封墊,必須嚴密、無泄露,以保證過濾效果。
推薦閱讀:百級層流送風天花? 千級層流送風天花? 手術室送風天花阻尼網
]]>
潔凈層流送風天花使用本設備可合理分布潔凈室內的氣流,有效保證室內的潔凈度。潔凈層流送風天花可廣泛應用于醫院潔凈手術室、潔凈病房、潔凈動物房等項目。潔凈送風天花是一種在醫院手術室的潔凈空間送風吊頂設置的過濾、阻漏、均勻分布氣流的潔凈送風天花裝置。

潔凈層流送風天花具有以下幾個顯著特點:
高效凈化:潔凈層流送風天花采用HEPA高效過濾器等,能有效過濾空氣中的細菌、病毒、塵埃等有害物質,確保室內空氣質量達到更好狀態。
均勻送風:通過天花板上的送風系統,潔凈空氣能均勻地分布到室內各個角落,避免出現局部死角,保證室內空氣流動性和舒適性。
智能控制:潔凈送風天花板通常配備有智能控制系統,可根據室內人數、溫度、濕度等因素自動調節運行,實現節能環保。
美觀大方:潔凈送風天花板的設計與天花板裝飾相結合,外觀時尚、簡約,能很好地融入室內環境中,提升室內美感。
安靜舒適:潔凈送風天花板采用低噪音設計,運行過程中幾乎聽不到噪音,為人們營造一個安靜舒適的生活空間。

百級送風天花:I級層流送風天花產品尺寸W2950*D2500*H500,高效過濾器尺寸610*305*292配(8個)I級8個高效過濾器
千級送風天花:Ⅱ級層流送風天花產品尺寸W2600*D1800*H500,高效過濾器尺寸610*305*292配(6個)Ⅱ級6個高效過濾器
萬級送風天花:Ⅲ級層送風天花產品尺寸W2600*D1400*H500mm,高效過濾器尺寸610*305*292配(4個)Ⅲ級4個高效過濾器;
血液病房送風天花尺寸2950*2500*500高效過濾器尺寸610*305*292配(8-10個)
眼科病房送風天花尺寸1500*1500*500高效過濾器尺寸610*305*292(4個)
“梓凈”牌潔凈層流送風天花高效過濾器有組合式高效過濾器、無隔板高效過濾器、有隔板高效過濾器三種,可根據需要選配。

潔凈層流送風天花要求:
1、一種手術室的潔凈送風天花,包括箱體、高效過濾器,其特征是,在進風上方按氣流方向設置高效過濾器箱體,箱體內置高效過濾器,在箱體進風口處設有均布器,在箱體下方設置阻漏層。
2、要求手術室的送風天花,其特征是,阻漏層為柔性低阻亞高效過濾材料阻漏層,阻漏層的阻力為40—80Pa;阻漏層的過濾效率在亞高效范圍內。
3、要求手術室的潔凈送風天花,其特征是,高效過濾器箱體內設有混風器。
4、要求手術室的潔凈送風天花,其特征是,阻漏層下方設有裝飾層。
5、要求手術室的潔凈送風天花,其特征是,在靜壓箱側壁開設有聯通孔。
潔凈送風天花一種手術室的潔凈送風天花,其特征是,在進風上方按氣流方向設置高效過濾器箱體及高效過濾器,在靜壓箱進風口處設均布器,下方設阻漏層。阻漏層為低阻亞高效過濾材料,阻力在40—80Pa,過濾效率在亞高效范圍內。

潔凈層流送風天花優點:
設置阻漏層,突破了高效過濾器必須布置在送風末端的常規模式;可降低建筑層高;方便過濾器的安裝檢修;使室內含塵濃度再次降低,把潔凈區面積擴大1倍以上。適用于手術室和包括單向流百級區亂流潔凈間。
總之,潔凈層流送風天花作為一種新型的空氣調節設備,以其高效凈化、均勻送風、智能控制、美觀大方和安靜舒適等特點,成為了現代室內環境建設的首選。
推薦閱讀: Ⅲ級手術室送風天花 手術室送風天花阻尼網
]]>I級送風天花配8個高效過濾器,Ⅱ級送風天花6個高效過濾器,Ⅲ級送風天花4個高效過濾器等。

層流送風天花分別為百級、千級、萬級層流送風天花、層流送風天花是現代醫院手術室必用的一種凈化裝置。層流送風天花它的裝置是根據國內外好的阻漏層技術,依托手術室潔凈送風天花裝置,使用本設備可合理分布潔凈室內的氣流,有效保證室內的潔凈度(送風面100級)。
千級層流送風天花可廣泛應用于醫院潔凈手術室、潔凈病房、潔凈動物房等項目。層流送風天花裝置是根據國內外好的阻漏層,使用本設備可合理分布潔凈室內的氣流,有效保證室內的潔凈度(送風面100級),箱體板金制作,表面烤漆。

千級層流送風天花是采用空氣潔凈技術對微生物污染采取程度不同的控制,達到控制空間環境中空氣潔凈度適于各類手術之要求;并提供適宜的溫、濕度,創造一個潔凈舒適的手術空間環境
送風天花主要應用在手術室中,凈化層流手術室可分為100000級、10000級、1000級、100級四級。
送風天花分為三個級別:
百級送風天花:Ⅰ型
千級送風天花:Ⅱ型
萬級送風天花:Ⅲ型

送風天花過濾器更換標準:
送風天花高效過濾器:阻力已超過額定初阻力100Pa,或等于2×設計或運行初阻力(低阻亞高效時為3倍)1年以上,超過標準隨時更換。
“梓凈”牌層流送風天花高效過濾器有組合式高效過濾器、無隔板高效過濾器、有隔板高效過濾器三種,可根據需要選配。
送風天花的設計特點:
百級送風天花即滿布高效過濾器的送風頂棚,有多種形式,本設計采用液槽密封形式的送風天花。
目前,液槽密封結構有兩種形式。
其一,高效過濾器上裝,即帶液槽的高效過濾器從上部裝入與之配套的框架刀口上,依靠高效過濾器邊框液槽內的密封膠與框架刀口來實施對氣流的密封。
這種結構需要的靜壓箱高度較大,否則,高效過濾器調轉不開。雖然高效過濾器在刀口框架上方,但并非在吊頂夾層內安裝,而是在潔凈室內把高效過濾器穿過框架口伸入靜壓箱后再轉向放于框架的刀口上。所以,夾層空間小的話,高效過濾器轉不開。
其二,高效過濾器下裝,即高效過濾器帶液槽的邊在下方,帶刀口的框架位于液槽的上方,與第一種情況正好相反,框架的刀口向下,把高效過濾器伸入靜壓箱內,液槽邊在刀口正下方,用壓件托住高效過濾器,使其邊框液槽與刀口接觸來密封空氣,高效過濾器的重量由4個壓件承擔。

帶刀口的框架常用的材質有專用鋁合金型材、不銹鋼型材。鋁型材運輸、安裝比較方便,可工廠化制作現場組裝。
但在連接縫處需靠密封膠密封,組裝后鉚釘外露,不太美觀。不銹鋼型材采用氬弧焊焊接,比鋁型材的插件鉚接密封性好。
但如果在施工現場焊接,質量不好保證。如果送風天花面積小的話可工廠化制作,現場安裝,這樣質量可得到保證。如果送風天花面積大的話,工廠化制作后的成品運輸又有困難。
在本設計中綜合上述優缺點,釆 用不鎊鋼型材工廠化泡作。由千級送風夭花的面積較大,考慮到運輸的因耒,把送風夭花分割 成三部分(即用25mm厚的彩考峽芯板將靜箱分害威三等分)。
每一部分安裝一整片刀口框架,把每一片分割成15個高效過濾器單元。 這樣做比采用一個大的靜壓箱均效果,但整個送風面的盲區有所增大,不過,經驗算滿 布比能滿足垂直單向流的荽求。盡如此,在本設計中釆用了高效過濾器下吾媒設阻尼孔板 來消除送風面盲區的影響,以保正百級單向流氣流組織。
百級送風天花采用技術層流凈化天花,層流天花是潔凈手術室、層流病房的凈化送風末端,它兼有高效過濾,均流及氣流補償作用。
推薦閱讀: Ⅲ級手術室送風天花 手術室送風天花阻尼網
]]>
阻漏式層流送風天花可單獨使用,亦可大面積并聯使用。阻漏式層流送風天花是一種可提供局部潔凈環境的空氣凈化單元,可靈活地安裝在需要高潔凈度的工藝點上方,潔凈層流罩可以單個使用,也可多個組合成帶狀潔凈區域。

層流送風天花優勢:
采用不銹鋼(電解鋼板)層流送風天花參照國內規范和技術進行開發,結構先進合理,具有以下特點:
A、產品規格:I級2600*2400,II級2600*1800,III2600*1400;
B、送風形式:層流送風天花分高效過濾器滿布送風和高效過濾器側布送風兩種;
C、氣流狀態:送風天花下部氣流均勻,氣流滿布率≧95%,達到檢測的相關參數要求;
D、均流模式:多塊網孔板組合,出風均韻,靜電粉末噴涂,和墻頂面同色,表面效果好;
E、工廠制造,現場采用標準連接件拼接組裝,安裝方便、簡單,設備安裝質量有保障;
F、維護操作:國標規格過濾器,更換快捷、方便,易維護。

手術室層流送風天花可選配件:
1、A型箱體為冷軋鋼板靜電噴塑處理,冷軋鋼板靜電噴塑做圍護及進風過濾框,含雙層DPP均流網及中速氣流補償裝置。
2、B型外箱體采用冷板噴塑,內部SUS30不銹鋼制作,中間夾保溫板。抗腐蝕、耐酸堿、保溫效果好,視覺更美觀;強度高,同時,保留雙層DPP均流網及中速氣流補償裝置。
層流送風天花靜壓箱采用電解鍍鋅鋼板表面噴漆處理或不銹鋼加工,四邊采用硅膠密封,形成一個氣密箱體;送風天花采用“梓凈”牌HEPA高效過濾器過濾99.999%@0.3μm,安裝在靜壓箱內,且能從天花下面進行維修;送風天花表面采用優質紗網框,它是一種特殊系數的阻尼網層,使空氣垂直地送到手術室主流區。

醫院手術室層流送風天花的送風系統形式分析:
醫院潔凈空調的任務應該是,維持室內所需要的空氣潔凈氣候狀態并解決空氣過濾器的應用中的塵埃、微生物、氣味和有害氣體,而醫院手術室的凈化空調工程是更重要也是最困難的任務,尤其是空調過濾器,手術室層流天花,手術室高效空氣過濾器的更換,風淋室控制空氣途徑造成的術后感染至關重要,同時因為降低和避免術后感染是保證手術成功、縮短患者恢復時間、降低醫療費用的關鍵所在。
手術室潔凈送風形式探討空氣過濾器,另外手術室空調的另一特點是服務面積雖小但風量大、能耗高、使用時間不確定,因此手術室空調過濾器在創造高度潔凈的室內氣候同時應特別注意空調潔凈系統的節能環保。

手術室阻漏送風天花技術參數說明:
送風天花過濾器尺寸,送風天花過濾器數量;送風天花選配DPP均流膜、不銹鋼孔板均流、氣流補償裝置、凈化燈帶;I級,II級,III級
I級層流送風天花產品尺寸2950*2500*500,高效過濾器尺寸610*305*292配(8個)
Ⅱ級層流送風天花產品尺寸2600*1800*500,高效過濾器尺寸610*305*292配(6個)
Ⅲ級層送風天花產品尺寸2600*1400*500,高效過濾器尺寸610*305*292配(4個)
血液病房送風天花尺寸2950*2500*500高效過濾器尺寸610*305*292配(8-10個)
眼科病房送風天花尺寸1500*1500*500高效過濾器尺寸610*305*292(4個)
推薦閱讀: Ⅲ級手術室送風天花 手術室送風天花阻尼網
]]>
百級送風天花特點:
我司生產的百級送風天花采用全新國外技術層流凈化天花,層流天花是潔凈手術室、層流病房的凈化送風末端,它兼有高效過濾,均流及氣流補償作用。層流天花結構的合理性直接影響到手術室的送風效果,凈化級別.垂直送風模式,手術室專用不銹鋼層流送風天花:層流送風天花參照國際國內規范和技術進行開發,經十多年實際醫院使用經驗積累,結構先進合理,不銹鋼精制,分為I、II、III級手術室用,箱體冷板噴塑,下框全不銹鋼,美觀耐用。

百級送風天花特點:
我司生產的百級送風天花采用全新國外技術層流凈化天花,層流天花是潔凈手術室、層流病房的凈化送風末端,它兼有高效過濾,均流及氣流補償作用。層流天花結構的合理性直接影響到手術室的送風效果,凈化級別.垂直送風模式,手術室專用不銹鋼層流送風天花:層流送風天花參照國際國內規范和技術進行開發,經十多年實際醫院使用經驗積累,結構先進合理,不銹鋼精制,分為I、II、III級手術室用,箱體冷板噴塑,下框全不銹鋼,美觀耐用。
使用本送風天花可合理分布潔凈室內的氣流,有效保證室內的潔凈度(送風面100級)。可廣泛應用于醫院潔凈手術室、潔凈病房、潔凈動物房等項目。
使用本送風天花可合理分布潔凈室內的氣流,有效保證室內的潔凈度(送風面100級)。可廣泛應用于醫院潔凈手術室、潔凈病房、潔凈動物房等項目。

百級送風天花技術參數:
百級層流送風天花是采用空氣潔凈技術對微生物污染采取程度不同的控制,達到控制空間環境中空氣潔凈度適于各類手術之要求;并提供適宜的溫、濕度,創造一個潔凈舒適的手術空間環境。送風天花對送人室內的空氣進行嚴格的過濾,除去空氣中的浮游細菌,加上科學的氣流組織,使病員、醫護人員產生的細菌隨氣流帶走,不會返回手術切口,以避免來自空氣感染。因此空氣嚴格過濾,氣流的合理組織,是手術室空氣凈化系統的技術核心。
百級層流送風天花是采用空氣潔凈技術對微生物污染采取程度不同的控制,達到控制空間環境中空氣潔凈度適于各類手術之要求;并提供適宜的溫、濕度,創造一個潔凈舒適的手術空間環境。送風天花對送人室內的空氣進行嚴格的過濾,除去空氣中的浮游細菌,加上科學的氣流組織,使病員、醫護人員產生的細菌隨氣流帶走,不會返回手術切口,以避免來自空氣感染。因此空氣嚴格過濾,氣流的合理組織,是手術室空氣凈化系統的技術核心。
推薦閱讀:手術室送風天花 Ⅲ級手術室送風天花 手術室送風天花阻尼網
]]>Ⅲ級手術室送風天花又稱為萬級手術室送風天花、Ⅲ級送風天花、Ⅲ級層流送風天花,現代醫院手術室必用的一種凈化裝置,它的裝置是根據國內外領先的阻漏層技術,依托手術室潔凈送風天花裝置,使用本設備可合理分布潔凈室內的氣流,有效保證室內的潔凈度(送風面10000級(萬級))。
Ⅲ級手術室送風天花工作原理:

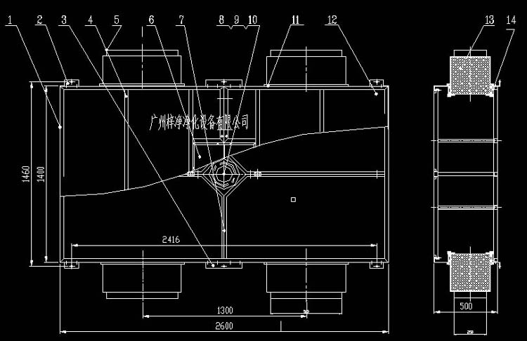
Ⅲ級手術室送風天花|萬級層流送風天花方案設計圖:

Ⅲ級手術室送風天花規格尺寸:W2600*D1400*H500mm,由于用戶要求不同,500的高度可根據用戶需要制作,高效過濾器可選用側鋪或平鋪兩種。

Ⅲ手術室送風天花制作要求選配:
1、萬級層流送風天花箱體為冷軋鋼板靜電烤漆處理。
2、萬級層流送風天花箱體采用全SUS304不銹鋼制作。
3、萬級層流送風天花阻尼層均流可選用鋁質網孔板、304不銹鋼網孔板、冷軋鋼板烤漆網孔板、雙層DPP均流網(DPP均流網又叫紗網,如上圖)。
4、高效過濾器有組合式高效過濾器、無隔板高效過濾器、有隔板高效過濾器三種,可根據需要選配,“梓凈”牌Ⅲ級手術室送風天花W2600*D1400*H500mm一般標配4個側鋪高效過濾器(規格610*305*292mm)。

手術室層流送風天花-潔凈送風天花是潔凈手術室,層流病房的凈化送風末端,它兼有高效過濾,均流及氣流補償作用。層流凈化送風天花結構的合理性直接影響到手術室的送風效果,凈化級別。層流送風天花是近十年來手術室送風末端經驗及實踐的結晶,該型式末端已得到了近千間手術室的運用證實,其優越的性能,獨特的雙層DPP均流網能使氣流均勻送到工作區域,而中央氣流補償裝置,能有效地消除人員、設備發熱而產生上升氣流對層流的影響。
手術室層流送風天花-潔凈送風天花工作原理:送風天花由高效空氣消毒過濾系統、風機動力系統、消音降噪系統、操作控制系統等組成。工作時風機吸入環境空氣,在經過空氣凈化消毒系統過濾成為潔凈無菌空氣,再以層流的方式將潔凈空氣送到罩內病床區域,同時使罩內保持正壓,以阻止外部空間的塵埃粒子及微生物進入罩內。
]]>手術室送風天花阻尼網又稱為手術室送風天花網孔板、手術室送風天花均流網、均流膜,主要分為四個部分組成:鋁合金框架包邊、300目雙層阻尼網、不銹鋼骨架、卡簧(均流網非廣州梓凈產品,更換時需要測量卡簧中心距、鋁合金外框需要測量邊長的端點到斜角位置距離)。此產品不做過多介紹,直接上圖。




手術室送風天花制作要求選配:
1、A型箱體為冷軋鋼板靜電噴塑處理,冷軋鋼板靜電噴塑做圍護及進風過濾框,含雙層DPP均流網及中速氣流補償裝置。
2、B型外箱體采用SUS304不銹鋼制作。抗腐蝕、耐酸堿、視覺更美觀、強度高,同時,保留雙層DPP均流網及中速氣流補償裝置。
3、手術室送風天花阻尼層均流可選用鋁質網孔板、304不銹鋼網孔板、冷軋鋼板烤漆網孔板、雙層DPP均流網。

手術室送風天花特點:
1、送風形式:層流送風天花分高效過濾器滿布(平鋪)送風和高效過濾器側布(側鋪)送風兩種。
2、氣流狀態:送風天花下部氣流均勻,氣流滿布率≧95%,達到行業檢測的相關參數要求。
3、均流模式:多塊網孔板組合,出風均勻,靜電粉末噴涂,和墻頂面同色,表面效果好。
4、工廠制造,現場采用標準連接件拼接組裝,安裝方便、簡單,設備安裝質量有保障。
5、維護操作:國標規格過濾器,更換快捷、方便,易維護。
6、過濾器壓差密封技術:保證潔凈區內無泄漏。
7、過濾器滿布技術:壓差低,超長使用壽命。
8、穩定的產品質量,供貨周期短。
8、高分子阻尼層送風網面:低阻力,風速均勻。
9、均流度滿足最新規范要求:不均勻度小于15% 。
10、變級別手術室:擴大手術室使用范圍,提高手術室使用率;同時運行中節約能源 。
11、燈柱蓋板小于250mm×250mm——符合最新版規范要求。

更多相關產品介紹:手術室送風天花
手術室送風天花阻尼網可根據用戶需求定制!
]]>手術室層流送風天花又叫阻漏層流天花、層流送風天花、手術室潔凈送風天花;層流送風天花是現代醫院手術室必用的一種凈化裝置。潔凈送風天花是手術室、層流病房的凈化送風末端,它具有高效過濾,均流及氣流補償作用。

手術室層流送風天花作用、用途、概述:
1、手術室潔凈層流送風天花裝置是根據阻漏層技術,依托手術室潔凈送風天花以及新型密封技術制造出來的潔凈送風天花裝置,使用本設備可合理分布潔凈室內的氣流,有效保證室內的潔凈度,可廣泛應用于醫院潔凈手術室、潔凈病房、潔凈動物房等項目。
2、潔凈送風天花是手術室送風末端經驗及實踐的結晶,這種送風末端已得到了近千間手術室的運用驗證。其優越的性能、獨特的散流板能使氣流均勻送到工作區域,而中央氣流補償裝置能有效地消除人員、設備發熱而產生上升氣流對層流的影響。

3、層流天花是潔凈手術室、層流病房的凈化送風末端,它兼有高效過濾,均流及氣流補償作用。層流天花結構的合理性直接影響到手術室的送風效果,凈化級別.垂直送風模式,手術室專用不銹鋼層流送風天花:層流送風天花參照國際國內規范和技術進行開發,經十多年實際醫院使用經驗積累,結構先進合理,分為I、II、III級手術室用,箱體冷板噴塑,下框全不銹鋼,美觀耐用。潔凈送風天花裝置是根據國內外領先的阻漏層技術,使用本設備可合理分布潔凈室內的氣流,有效保證室內的潔凈度(送風面100級)。
4、箱體內壁四角及鋁合金邊框可以根據客戶需要加工成小于R80mm圓弧過渡,杜絕死角,不易滋生細菌。箱體中可根據需要設置氣密性凈化燈帶,即有層流效果,又可照明;與內嵌入環島整體式凈化燈帶相配合,使整個手術室光照度均勻,解決了老款安裝在大型手術室中,光照度不均勻的不利因素。

5、阻尼層均流,采用鋁合金扣壓式裝配,不得使用螺釘裝配,以便于更換及維護。中間帶中速氣流補償裝置采用2.0mm厚的拉絲防銹鋁板制作,完全杜絕以前層流天花因為無影燈阻撓而中心位置氣流減弱而影響層流效果;進口阻尼層流微孔均流送風。
手術室層流送風天花制作要求選配:
1、A型箱體為冷軋鋼板靜電噴塑處理,冷軋鋼板靜電噴塑做圍護及進風過濾框,含雙層DPP均流網及中速氣流補償裝置。
2、B型外箱體采用冷板噴塑,內部SUS304不銹鋼制作,中間夾保溫板。抗腐蝕、耐酸堿、保溫效果好,視覺更美觀;強度高,同時,保留雙層DPP均流網及中速氣流補償裝置。
3、箱體采用全SUS304不銹鋼制作。
